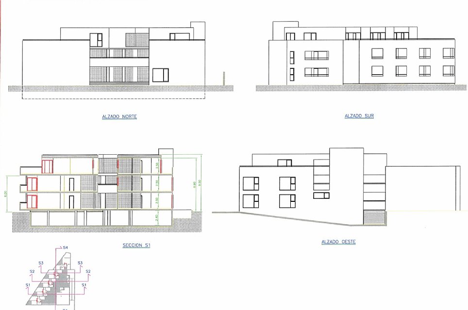
Suelo terciario con licencia para construir 16 apartamentos, 16 garajes y 1 local
Caloquera
Sancibrián- 0 Habit.
- 0 Baños
- 0 Superficie
499.900,00€
Home details
- Tipo de Inmueble:
- Fincas y solares
- Régimen :
- Venta
- Precio :
- 499.900
- Localidad :
- Sancibrián
Suelo terciario con licencia para construir 16 apartamentos, 16 garajes y 1 local
Desde Inmozenter ponemos a la venta este magnifico solar con uso terciario en Sancibrian, Santa Cruz de Bezana. Este terreno cuenta con licencia para la construcción de 16 apartamentos turísticos, cada uno de ellos con su propio garaje, así como un local. Realizada ya la división horizontal, cada apartamento y garaje dispone de su propia nota simple registral.
Ubicado en Santa Cruz de Bezana, se encuentra rodeado por una zona estupenda para la realización de cualquier actividad relacionada con el sector terciario.
No dejes pasar esta oportunidad. Ven a visitarlo.
